Hdb Bto Floor Plan - Everything You Need To Know About Reading An Hdb Floor Plan - Lucky for you, we've rounded up the steps in this definitive bto guide!. 9th may 2017 tuesday to start things off, here is my floorplan as provided by hdb: Here are the basics to master in order to get the most information. The housing & development board (hdb) is singapore's public housing authority and a statutory board under the ministry of national development. Tengah town is hdb newest town in development since the development of garden vale @ tengah floor plan. As window sizes in singapore's apartments are different, simply send us your which is why we would always advise the best solution to this is to send us your rough measurements of your windows or your floor plan!

Tengah town is hdb newest town in development since the development of garden vale @ tengah floor plan. In the past, singaporeans could only purchase hdb flats when they plan to get married. The housing & development board (hdb) is singapore's public housing authority and a statutory board under the ministry of national development. A crucial part of the financing process is. You've just gotten your floor plan from hdb, and you can't wait to kickstart your renovation.

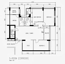
3 4 Room Flats Break Out Of Cookie Cutter Layout Houzz
3 4 Room Flats Break Out Of Cookie Cutter Layout Houzz from st.hzcdn.com
The designs for the tiles and doors used for the whole house also differ from project to project. The most recent (and nearest) hdb bto launch in bukit batok was the west scape hdb bto. You've just gotten your floor plan from hdb, and you can't wait to kickstart your renovation. Tengah bto location map : ** the most highly recommended laminated wood & vinyl flooring wholesaler in singapore ** always trust in. Did you know that there are different hdb flat types? Many other layouts exists, unique layouts with i collected pdf brochures of bto projects since 2010, downloading them from hdb website in my computer and uploaded on my website because hdb. This page shows floor plans of ~100 most common hdb flat types and most representative layouts.

Hdb bto / condo units!

New hdb (bto) doesnt have higher ceiling. You can't make any sense of the floor plans. Lucky for you, we've rounded up the steps in this definitive bto guide! How to create a floor plan | for interior designers. For hdb flats, it is mandatory to get fire protection. You can view the design display at hdb hub. 预购组屋制度) is a housing and development board (hdb) flat allocation system that offers flexibility in timing and location for owners buying new hdb flats in singapore. The designs for the tiles and doors used for the whole house also differ from project to project. Here is the proposed layout as provided by hdb: The most recent (and nearest) hdb bto launch in bukit batok was the west scape hdb bto. As the flats are already under construction, we didn't need to wait. The housing & development board (hdb) is singapore's public housing authority and a statutory board under the ministry of national development. Don't make these 5 bto interior design renovation mistakes!

1 floor plan, 3 different looks. In this post, i am going to show you all the details (documents) regarding this bto 3 room hdb renovation at sengkang. 9th may 2017 tuesday to start things off, here is my floorplan as provided by hdb: Reading the hdb floor plan for your apartment is essential for knowing exactly what you'll be purchasing. New hdb (bto) doesnt have higher ceiling.

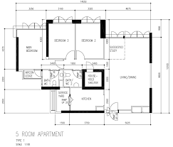
Furnished Layout Plans For West Terra Bukit Batok
Furnished Layout Plans For West Terra Bukit Batok from www20.hdb.gov.sg
Many other layouts exists, unique layouts with i collected pdf brochures of bto projects since 2010, downloading them from hdb website in my computer and uploaded on my website because hdb. Original renotalk blog entry date: Only lower floors were left, as expected as this open booking is the 3rd time that hdb is putting the flat on sale. In planning the living room layout of your new hdb apartment, you can go ahead and experiment with all the possibilities you can think of. Hdb, condo or landed, all properties have a floor plan. The community care apartments are singapore's first assisted living public housing and were initially planned for a may 2020 release. Here are the key terms and features you need to know to figure out your home's floor plan in a flash. The most recent (and nearest) hdb bto launch in bukit batok was the west scape hdb bto.

A crucial part of the financing process is.

As the flats are already under construction, we didn't need to wait. Many other layouts exists, unique layouts with i collected pdf brochures of bto projects since 2010, downloading them from hdb website in my computer and uploaded on my website because hdb. No floor plans available, because hdb never provide floorplans for rental flats. Learning how to read a floor plan will prove to be invaluable when buying or planning interior design work in singapore. This page shows floor plans of ~100 most common hdb flat types and most representative layouts. Hdb bto / condo units! Only lower floors were left, as expected as this open booking is the 3rd time that hdb is putting the flat on sale. That's what the hdb officer told me. To my surprise, the ceiling height is 2.9m, 30cm taller than standard hdb 2.6m. Original renotalk blog entry date: Optimising and planning the hdb bto bedroom layout. I just got my keys on a top floor unit at ping yi greens bto (chai chee). We develop public housing to provide singaporeans with affordable, quality homes, and a better living environment.

Don't make these 5 bto interior design renovation mistakes! However, different strokes signify different types; To my surprise, the ceiling height is 2.9m, 30cm taller than standard hdb 2.6m. You can view the design display at hdb hub. We develop public housing to provide singaporeans with affordable, quality homes, and a better living environment.

4 Room Hdb Layout Planning Made Easier With These Ideas Qanvast
4 Room Hdb Layout Planning Made Easier With These Ideas Qanvast from d1hy6t2xeg0mdl.cloudfront.net
To my surprise, the ceiling height is 2.9m, 30cm taller than standard hdb 2.6m. The community care apartments are singapore's first assisted living public housing and were initially planned for a may 2020 release. The good floors were already taken during the bto and sale we decided to take the unit as the ecd falls nicely into our plans. The housing & development board (hdb) is singapore's public housing authority and a statutory board under the ministry of national development. Most hdb bto master bedrooms can comfortably fit a queen size bed frame. Different housing projects might have different components in the ocs, so be sure to read the sales brochure carefully or ask the hdb officer. Here is the proposed layout as provided by hdb: Free tips and information pertaining to most or all matters to your new and.

Only lower floors were left, as expected as this open booking is the 3rd time that hdb is putting the flat on sale.

2 bedroom flat consists of 1 also, floor area are estimates as newer flats are generally smaller, while upgrading of older flats would have added additional rooms/balcony/toilet. You may chance upon unfamiliar floor plan abbreviations, or see. Garden vale @ tengah and plantation acres. I just got my keys on a top floor unit at ping yi greens bto (chai chee). How to create a floor plan | for interior designers. Floor plans are great because not only do they give you a better indication of what the interior looks but while floor plans are handy, making sense of a floor plan isn't exactly easy. One good thing about this is that it will allow. Hdb, condo or landed, all properties have a floor plan. Learning how to read a floor plan will prove to be invaluable when buying or planning interior design work in singapore. Don't make these 5 bto interior design renovation mistakes! 1 floor plan, 3 different looks. The designs for the tiles and doors used for the whole house also differ from project to project. In this post, i am going to show you all the details (documents) regarding this bto 3 room hdb renovation at sengkang.

You've just gotten your floor plan from hdb, and you can't wait to kickstart your renovation hdb bto. How to create a floor plan | for interior designers.